Skala proyek: 62 unit
Deskripsi proyek:
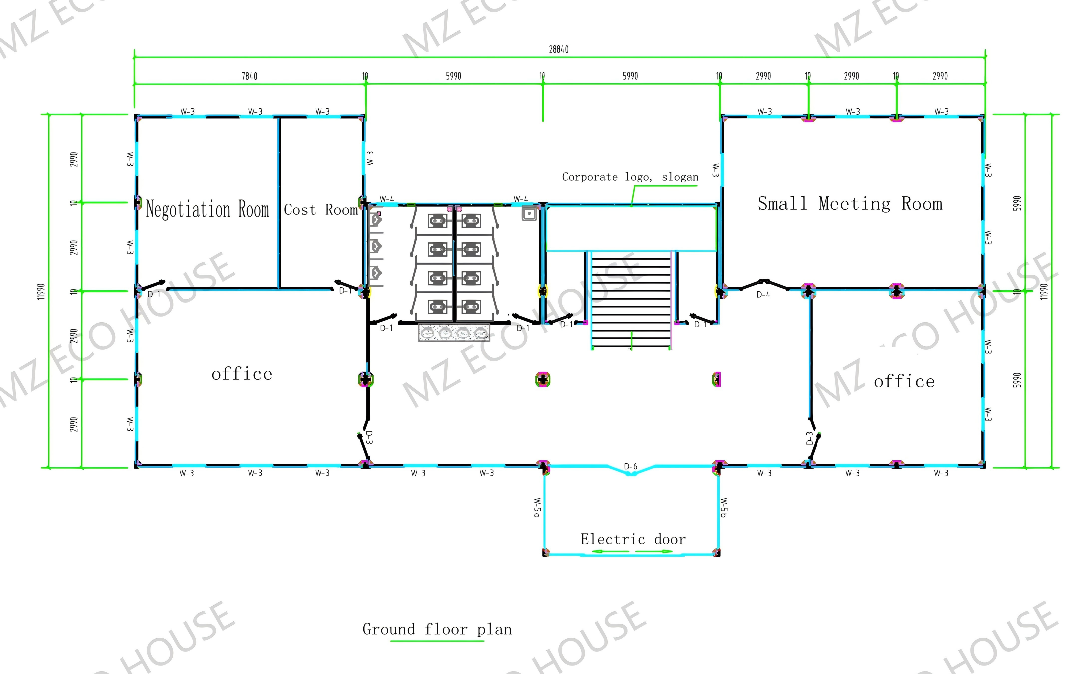
1. Sistem konstruksi cepat modular
Sambungan rel geser: Bagian bawah kontainer dipasang sebelumnya dengan rel geser, dan ruang kantor 200㎡ dapat dirakit dalam waktu 24 jam
Struktur lipat: Beberapa dinding menggunakan engsel hidrolik untuk beralih antara mode ruang rapat ↔ kantor terbuka dalam 5 menit.
Ekspansi vertikal: mendukung tumpukan 2~3 lapisan (diperkuat oleh eksternal besi struktur). 

2. Kontrol lingkungan cerdas
Sistem Internet of Things (IoT):
Secara otomatis menyesuaikan pencahayaan, suhu, dan kelembapan (dikendalikan melalui aplikasi ponsel).
Layar pemantau konsumsi energi menampilkan daya listrik konsumsi/data penghematan air secara real time.
Kaca fotovoltaik: Beberapa jendela terintegrasi dengan film surya transparan (pembangkit daya 15W/㎡).


